
Residential Development Abu Dhabi, UAE
February 6, 2021
549470 – Project Management, Undergraduate, Coursework
February 6, 20211. Introduction
Infrastructure development requires completion of various activities, which includes selection of teams, planning, designing works, establishment of procurement strategies / tendering, construction works, commissioning and final finishing. From the very beginning of the project works, it requires extensive management throughout life of the project. Therefore it is important to indentify the specific activities involved in the project and develop management as well engineering strategies in order to successfully complete the project (Jongeling, 2006).
“Sports for All” has proposed to develop a sporting facility in Coventry, for which a site in the south of Coventry has already been secured. This locality has been subject to high crime and lacks any considerable sports facilities, and therefore this area has been suitable selected for this development. The local housing authority has also been keen to develop this area and have reserved funds for regeneration of this area; which is a promising step towards a prospective future of this area.
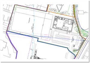
The proposed site is located between a housing estate which accommodates a primary school approximately 500 meters down the road, and a an industrial state which was has been recently constructed and houses large industrial storage units; a FedX storage facility that requires 24/7 access for articulates Lorries entering/exiting the site. The site layout is shown in the figure below;

Figure 1; Site Layout (source: coursework Nr 1 handout)
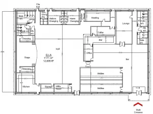
According to the initial draft of drawings, the proposed sports complex incorporates the following facilities;
- A club building that includes a multiuse sports hall
- Showering and changing rooms.
- A main kitchen, a meeting room, storage utility, meeting room, a lounge and various other facilities. The plan also includes an extensive car park which can accommodate unto 78 vehicles, and a full sized multiuse natural turf pitch, as shown in the figure 1.
The primary layout is shown in the figure 2 below;
Figure 2; Primary Layout (source: coursework Nr 1 handout)
In this report, the primary design considerations, the project outline, proposed construction solution, a detailed method statement, a construction programme, and risk analyses along with other fundamental procedures have been briefly presented.
2. Construction Solution
According to the primary plans as proposed by the “Spots for All”, the sports complex is to be constructed using traditional materials such Brickwork and block work, as shown in the figure below;
Figure 3; Club Elevation (source: coursework Nr 1 handout)
However, it is important note that material selection in any development/construction project is an extremely important aspect, and various alternatives must be reviewed before final selection or when a solution is proposed. Various parameters such as costs, durability, strength, safety and suitability must be considered before finalizing the construction solution, as the material selection process standouts amongst the most critical parts of building development.
The selection of materials is to be based upon the potential ability of the materials to be re-used (sustainable), cost effective and viable with respect to the material's extraction, to its processing, transportation and subsequent installation. Only those materials which can meet the green standards in these individual stages must be utilized in sustainable-structural planning designs (Bennets et al, 2002). Framed solutions facilitates meets all these requirements and are considered to be much more sustainable, therefore, many of the sports facilities are nowadays constructed through the utilization of steel frame solutions.
For this project, steel frames are proposed to be used as an alternative to brickworks, block works or any other forms of concrete or timber. The reason for this is that steel framed solution have been reported that utilization of steel frames can be more cost effective as compared to other types of materials of construction, and due their ability of recycling, they are considered to be more environmental friendly (Thormark, 2006). The sports complex is to be used as a public service, and hence promotion of a message of sustainable development must be considered in this project.
Furthermore, frame structure can provide immediate strength, durability and adaptability to the structures, which are some of the fundamental requirements of the modern infrastructure. This type of structure provides precise diminutions and easy installations, as these can be fabricated off the site, and then brought on site for ready installations. This practice can save much of the project time and costs. The ability of frames to be used at wider angles can ensure provision of wider and sufficiently spaced sheets/panels. However, there might be cases where steel may get rusted, for which the frames will be powder coated via thermally reacting a protective layer on this material.
The pre-cast concrete slabs can be used for flooring on the building structure. The internal partitions inside the building can also be installed through utilization wall partitions, which can enhance the design adaptability as it would be easier revise any partitioning layout through this type of partitions. In order to improve thermal efficiency, protective sheets can also be installed along with these partitions, which can be sufficiently cost effective. Provision of adaptability in design is of extreme importance in this type of structure as requirements of the sporting complex can change with requirements of the clients.
3. Method Statement
A comprehensive method statement has been presented as below, which outlines the fundamental elements for the complete project life cycle.
-
Scope of Works
This methods statement outlines the methodology to be adopted for the entire project of the development of sports facility in Coventry, from the commencements of the construction works till the completion of finishing works. The scope of the works includes selection of raw materials for constructions, shop drawings development and subsequent approvals, coordination with primary contractors and subcontractors, startup of site enabling work, assurance of quality of works along with activity execution and fabrication.
-
Planning & Design
A holistic approach to the project development will be undertaken, which includes primary planning, designing and engineering in accordance with the site requirements. Provision of the primary design will be the responsibility of the client. As a project manager, assessments will be carried out to analyze the availability of project time, budgets, execution of works and subsequent handover to the client. It will be the responsibility of the project manager to take appropriate actions in order to ensure that the planned works are in accordance with the requirements of the project.
Expert labour will be utilized by the client for planning and designing, and consultancy services may also be obtained to gain an expert advice on the project design. Subsequent approvals from the Local Council and Planning Department will be obtained. It is also important to note that leave way agreements will have to be confirmed with local companies at this stage the project. This activity is expected to take approximately 30 days to complete, and may cost up to £ 4000, excluding the fee of contract project manager
-
Time Scale
The project will take approximately 15 months to complete.
-
Contractual works
The construction works will be completed through construction contracts. These works include, site excavations, piling, ground-works, steel erection, flooring, cladding, roofing, finishing works etc. The works will be under the supervision of contractual project manager. The contractors will be advised to use local labour. Plant and other materials will be responsibility of the contractor. The feasibility cost for these works will be approximately £ 250,000, and will take up to 12-14 months for completion
Works undertaken by a specific subcontractor will be under a separate method statement. The actual cost of this element will be defined through an open tendering process, in which all the associated companies will be advertised to participate in. The bill of quantities will be prepared and compared with the tenders. The least cost tender will be selected, however selection procedures may also consider factors such as organizational background and sustainability considerations.
The contractor will be paid a lump sum amount through adaptation of a traditional procurement strategy. In this strategy, most of the works related to the design and planning will be completed through consultations and the project manager, which is hired by the client. The cost of labour resources, plant and materials will be incorporated in the total payments. However, this is required though a contractual agreements, and for this project the FIDIC “Conditions of Contract for Construction for Building and Engineering Works Designed by the Employer” - the Red Book (1st edition 1999) is most appropriate.
-
Preparatory Works
It is assumed in this report that the works will commence in May 2015. Site fencing will be initiated under the jurisdiction of local council directions, and site inductions will be required by all the contractors. The fencing will be 2.5m high erected on natural ground and secured. Designated areas will be screened with solid boards; to minimize disturbances to birds. Parking at site will be constructed as soon as these works are completed. Temporary access road will be provided onsite at this stage. The estimated time for this element will be 1 month; the cost would be in accordance with the management and sub-contractor contracts, with an estimate of around £ 18,000. The subcontractor will be responsible for the payments to labour resources, plant and material costs.
-
Plant, Materials and Storage
After outlining a designated fenced area, all the plants and materials will be unloaded loaded, from where the construction works could be easily initiated. The storage on site will be such that an easy access is available, which will close to their use and in orderly fashion. Vehicle routes along with pedestrian walkways will be outlined and appropriate barriers will be installed. The estimated time for this element will be 1 month. The cost would be included as the contractor’s responsibility in the contractual works
-
Health and Safety
The construction manager will be responsible for health and safety at site. Storage of hazardous materials, plants or equipments will be strictly monitored and controlled; all such areas will be marked as hazardous and limited access will be provided. Specific mitigation measures will be taken such as; control of heavy machinery, its usage and production of waste gases will be monitored and controlled. Noise pollution will be controlled though implication of specific procedures.
A code of conduct will be implemented at site in consultation with the local council/bodies. The site engineer will be responsible to supervise all the construction works, to ensure that all works are executed in accordance with the code of conduct. Workshops and training will be conducted, and a strict compliance with the safety procedures will be enforced, and this will be added as part of the contracts for all resources associated with this project. A record book for incidents will also be maintained by the site engineer / foreman. This element will be lead throughout the life of the project. The expert human resource cost will be incorporated in the management contract with the project manager; implications will be enforced though adding it as contractor’s responsibility to follow the code of conduct for all activities undertaken in the project (for contractual works). Workshop/training, consultancy fee and other expenses will be approximately £ 10,000
-
Security
The client and other responsible authorities will be consulted to strategies the site security. The main contractor will be obliged to take for complete responsibility of the material’s and equipment security until installation and approval. A policy will be implemented through which all members of staff and operatives will given identification cards, and will be instructed comply with policy under all terms. Security surveillance cameras and a guard will be procured from an external independent security service provider, with an estimate of around £ 35,000. This element will be lead throughout the life of the project.
-
Quality Control
A comprehensive Quality Control Plan will be prepared in consultation with the all the stakeholders. The plan will be developed to ensure the works are completed in accordance with the all design parameters. The in-house quality control program will outline the procedures, progress schedule, inspection details, testing plan, control activity documentation and corrective actions. The aim of the programme would be to prevent usage of questionable materials, ensure zero defects and achieve 100% client satisfaction. This element will be lead throughout the life of the project. The expert human resource cost will be incorporated in the management contract with the project manager; implications will be enforced though adding it as contractor’s responsibility to comply with quality control plan recommendations in the project (for contractual works)
4. Construction Programme
The project construction program can be represented as an activity schedule, which outlines the primary activities of the construction project (Jongeling, 2006). The construction programme presented in this report highlight the critical items / activities related to the project of “Sports for All”, in the form of a real time based programme.
The time reflected in the programme under each activity will be formalized by the project manager after detailed consultation with all associated project technical staff such as project engineer or site foreman, other stakeholders, consultants etc. As the project matures, advice can be obtained from the project contractors and sub-contractors too. The primary project/construction programme outlined in this section does not include the planning and design approval activities, as these will be finalized by the Charity, their advisors/consultants and the project manager, before the tendering process.
The following is the primary construction programme;
Table 1: Project Construction Programme
|
Project Critical Items / Activities |
Year 2015 in Months |
Year 2016 in months |
|||||||||||||
|
5-6 |
7 |
8 |
9 |
10 |
11 |
12 |
1 |
2 |
3 |
4 |
5 |
6 |
7 |
8 |
|
|
· Budget preparation, risk analyses, design documentations, project management contracts will be finalized. · Initial Bill of Quantities will be prepared by client and project manager, and advertised for tendering. · Tender will be selected after open comparison, and approvals. · Procurement strategies will be establishment · Contracts with respect to scope of works will be awarded, and primary site preparations will be initiated
|
|
|
|
|
|
|
|
|
|
|
|
|
|
|
|
|
· Site Preparation along with perimeter installation on site will be completed · Import of machinery, procurements of materials and installation of workshops, and development of car park will be completed |
|
|
|
|
|
|
|
|
|
|
|
|
|
|
|
|
· Erath works and civil works to be initiated. Excavation for sport complex/ buildings. Foundation works to be initiated
|
|
|
|
|
|
|
|
|
|
|
|
|
|||
|
· Foundation works to be completed and pipeline and ancillary services will be initiated simultaneously
|
|
|
|
|
|
|
|
|
|
|
|
|
|
|
|
|
· Finishing the building structural works (flooring, walling roofing, portioning) and completion of pipeline and ancillary services · Import of structure materials and assembling
|
|
|
|
|
|
|
|
|
|
|
|
||||
|
· Commissioning of civil works including Mechanical , Electrical and Commissioning works for all the buildings along with the all engineering works in accordance with the requirements
|
|
|
|
|
|
|
|
|
|
|
|
|
|
|
|
|
· Structural works finishing (flooring, walling and roofing) · Final load testing · Project handover documentation completion
|
|
|
|
|
|
|
|
|
|
|
|
|
|
||
The programme, as shown above, must not be a mere paper exercise of keeping record what has happened and what has been planned as the next activity, as for it be effective, it must be implied as a strategy in planning of activities, monitoring progress, and to identify the areas where additional resources may be required (Ballard, 1997). This programme will be utilized in the process of contractor appointments (as the contractor will have to agree with the programme), supply of materials, in mitigation strategy, evaluation of the works once the developments works have been completed. The programme will also be used to incorporate the advice of consultants under each activity, so that the planned resource under each element can be monitored, and evaluation results could be reported to the Charity.
5. Strategic Management, Relationship, and Communication
The primary of objective of the strategic management is to ensure that projects are completed as per the scope of works, within the allocated budgets, and within the allocated time. Therefore a comprehensive management strategy must be adopted, which ensure timely tracking of activities, resolve complex situations and enhance performance of the project (Mehta et al, 2009). Therefore it is recommended that a management contractor is appointed for this project, which will be responsible for management of construction related works
Figure 3; Strategic Management contracting (source: Edited using MS Paint, 2014)
As shown in the figure above, the project teams and their respective responsibilities include;
- The employer team: Consultants, architect, designer or other technical staff. This team will be responsible to provide the project design, initial cost estimated and bill of quantities, tenders release and supervision of project variables.
- Project Manager or Management Contractor team; site foreman, cost engineer and/or other technical staff. Responsible for the entire project, from the beginning till finishing, which includes supervision of the all the contractors. Other responsibilities are detailed in section below
- Contractor and sub-contractor teams. These teams will be responsible for the construction woks, supply equipments, materials, installation in accordance with the project contracts and tender
The project manager will be under a management contract with the client, and will be responsible to lead the contractor/subcontractor teams. The project manager will take guidance from the management and project consultants, and site mobilization will be initiated. Specific human resources dedicated as per the project requirements will be reporting to the project manager (through contractors) for the progress at site. The production engineer and/or supervisor/foreman will be other key personnel supporting the project manager. The costs of the management and labour will be in accordance with the contractual agreements.
Information will be shared between the clients, designing / advising teams of the client and project manager, which is then passed on to the contractors. Since the project manager will be under the confidence the client (working closely with the client’s team), it can provide opportunity for initiation of early construction works on site, such as fencing etc. The Charity Sport for All will sign a cost plant contract with the project manager in accordance with the project-drawings, sites & quantity surveys and other specifications.
The scope of works will be documented through contracts. Subcontracts may also be awarded through an appropriate but independent procurement strategy, in accordance with the local legislations / regulations. The contracts will also define internal management purposes and responsibilities, through which the management can ensure progress under all sets of trades.
The logistics and production teams will work closely with the managementy to ensure timely delivery of required materials. The specialist contractor or sub-contractors will undertake the required works in accordance with the contractual agreements, and will be responsible for timely delivery of these activities. Close co-coordination with subcontractors and consultants will be required in order to ensure that site excavations, piling, ground-works, steel erection, flooring, cladding, roofing, framing etc works are completed in accordance with the requirements.
Meetings between the project/contract manager and the contractors will be arranged after regular intervals, recommended to be held on every alternate day, and after completion of every activity, to ensure that works are progressive, not interrupted and accomplished in accordance with the design requirements. The minutes of the minutes would include details on the works being completed since the last meetings, checking the updated status with the project construction programme, verify that the method statements are being followed, and review any risk circumstances if occurred.
The project manager will then review parameters of the quality, cost scope prospective of the project before sharing an update with the charity and take advice on further matters.
In order to ensure that “sports for All” project does not cost more than the original tenders, it is finished in-time and in accordance with initial scope of works, the following strategies can be adopted by the Charity to control the costs, quality and delivery;
- Obtain periodic update on project scope, tasks, resources, quality and duration etc from the project manager, as discussed previously, and verify that deliverables are in accordance with required standards
- Consider utilization of various trends, index of cost performance and earned value statistics
- Analyze available records of similar projects and utilize graphical techniques such as tracking curves, BIM (Building Information Modelling) etc
- Obtain services of a third party for an independent estimation
It will be the responsibility of the project manager to ensure that all the works completed with optimum finishing. After successful completion of the project, the infrastructure will be handed over to the client after formal inspection with the representatives of the client, and the necessary handover documentations will be completed.
6. Risk Analyses
For the “Sports for All” project, various potential risks can impact the project in multiple ways, and thus would require multiple mitigation actions. The risk therefore must be prioritized in accordance with the ranking, and mitigation measure must then be taken to eliminate the risk or at least reduce its severity and probability to occur. The risk owner which is nominated in the risk register must be responsible to take these actions
A five point method of scoring can be used, which showcases the probability of accruing of risk, as shown in the table below;
Table 2: Risk Scoring Method
|
Too low |
1.0 |
|
Low |
2.0 |
|
Medium |
3.0 |
|
High |
4.0 |
|
Too high |
5.0 |
A score of 5 would mean that a risk too likely to occur, where as a score of 1 would mean that there very less chances of this type risk to occur. A score of 2.5 would imply that there are 50% chances of risk to occur.
The following risks register has been prepared for “Spots for All” project, which highlights the major risks involved along with the actions that charity can take to mitigate the risks. In the table below;
- “T” represents Time in terms of the impact it may have on the project programme, considering the loss in time such as days, weeks or months etc.
- “C” represents the impact on cost,
- “Q” represents the quality, which considered as impact on the outcome, such as number of jobs disturbed etc.
- “I” is the Impact (T+C+Q ) and
- “P” is the Probability, where as
- “S” is the Severity (I x P)
Risk Register
|
Sport for All Project |
|||||||||
|
ID |
Risk |
T |
C |
Q |
I |
P |
S |
Action Plan |
Ownership |
|
R1 |
Low initial budget estimates |
2 |
2 |
3 |
7 |
3 |
21 |
Review the estimates and revise estimation methods |
Project Manager |
|
R2 |
Construction Delays due to weather |
3 |
3 |
1 |
7 |
3 |
21 |
Risk to be transferred to contractor, on payment of premium. Confirmed through contract |
Project Manager |
|
R3 |
Funding |
3 |
1 |
1 |
5 |
2 |
10 |
Confirm bids, Confirm payment schedule with donors, look for alternate donors |
Charity management |
|
R4 |
Failure to submit |
1 |
1 |
1 |
3 |
1 |
3 |
Assure sufficient staff and equipment. Ensure project delivery schedule is followed |
Project Manager |
In order to review the estimates and revise estimation methods, a cost management plan will be developed to analyze the manner in which costs were estimated, reported and controlled. The planning responsibility will be assigned to the cost engineers (which can be hired on project base), who will look into the entire scope of works, resources to be used and the productivity of the project. Other risk highlighted in the risk register will be addressed by the ownership of the risk, i.e. the person/team to which the risk has been assigned to. The recommended action plan or mitigation measure will be taken to address the risks
The charity will also have the responsibility to ensure provision of the following, for which they can obtain services of the expert advisors and consultants.
These Charity responsibilities include;
- Overall / initial cost estimation of project, and delivery of the funds
- Evaluation of conceptual estimates of requirements and cost objective requirements
- Obtain estimates of contractors and undertake reassessment on these bases
- Update current control estimate for any changes proposed
- Maintain a record of the real cost data
The project Manager will further responsibilities on the following
- Complete and provide the scope estimation
- Develop comprehensive cost estimation plans while ensuring that the costs are composed near to estimated cost
- Develop neutral/independent cost analyses in given time
- Analyses of any potential cost variations and share information with the Charity
- Contractor’s productivity must be assessed and proper measures must be taken to ensure that works are completed in accordance with requirements
- Estimate costs for the scope of all contractors
Enforce control plans (quality, cost, delivery, safety etc) and introduce disciplinary actions as required
- Preparer of final closeout documents
- Supervise all project related activities
7. Conclusion / Recommendations
Project planning, monitoring, health and safety issues can be addressed through adaptation of an engineered project management strategy proposed in this paper, however various parameters must be carefully considered before the final decisions are taken. The board must take necessary mitigation measures to ensure successful completion of the project. The professional teams proposed to be involved must be matured, and control strategies must be implemented. The project cost, quality, and delivery can be assured using the proposed methodology.
From the study completed, it is estimated that project would require a budget of £ 317,000 in addition to the management contractor and consultancy fee. These budgets must be allocated / banked as soon as possible and risk control strategies as presented in this paper must be adopted to ensure successful completion of the project.
References
Ballard, G., 1997. Look ahead planning: the missing link in production control. Proc.5th Conf. of Lean Construction
Bennets, Helen, Antony Radford, and T. J. Williamson (2002) Understanding Sustainable Architecture. London: Spon Press.
Construction Project Management Portal, 2013. Top-Down Construction Method. Available online at: http://consproman.wordpress.com/2012/04/23/top-down-construction-method/
Draft Environmental Management Plan, 2013, Method Statement, Rev 1. Shell Exploration and Production Ireland Ltd.
Jeffris A., Madsen D.A. and Madsen D.P. (2010). Architectural Drafting and Design. Common Commercial Construction Materials, Chapter 43.
Jongeling, R. 2006. A Process Model for Work-Flow Management in Construction, Department of Civil and Environmental Engineering, Lulea University of Technology
Loe, E. (2000). The Value of Architecture: Context & Current Thinking. London: RIBA Publications
Mehta M., Scarborough W. and Armpriest D. (2009). Building Construction; Principles, Materials, and Systems. Boston: Prentice Hall.
Thormark, C., (2006). The effect of material choice on the total energy need and recycling potential of a building. Building and Environment 41 (2006) 1019-1026
United Nations, (2002). Plan of Implementation of the World Summit on Sustainable
Get 3+ Free Dissertation Topics within 24 hours?


























